El proyecto recupera parte de un granero construido en los años cincuenta, situado en el interior del recinto de un extenso cortijo cerca de la ciudad de Granada. Se trata de una construcción de dos plantas en buen estado, con graneros en la planta alta y almacenes de aperos y cocheras en la planta baja. Una nave de dos crujías con estructura de pilares de ladrillo visto, con el forjado y la cubierta a dos aguas resueltos con palos de madera de chopo.
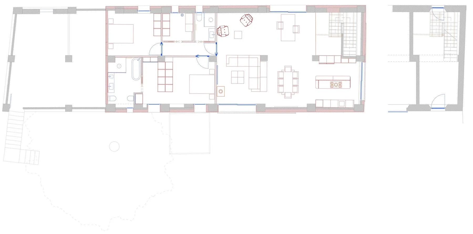
Con la sencilla intención de habitar esta construcción agrícola, potenciando su magnífica localización entre patios, huertos y jardines, la propuesta se plantea como una mínima intervención. Se accede en el extremo este de la fachada sur, mejorando la escalera que comunica con la parte alta, que es el ámbito que se recupera como vivienda. Dado el buen estado de la estructura de madera de la cubierta solo se han levantado las tejas para incorporar el aislamiento necesario y se han introducido tirantes de acero para limitar la movilidad estructural.
La zona abierta del espacio habitado se plantea como un espacio único que ocupa tres crujías y sugiere tres miradas hacia el exterior: al sur, hacia el patio del corral; al este incorpora a la cocina el jardín de bojes y catalpas; y al norte el área de trabajo mira el paisaje de la Vega de Granada y la Sierra de Huétor Santillán. Los materiales empleados son pocos: las vigas recicladas resuelven la escalera y el mobiliario de baño, complementados con tableros tricapa. El suelo radiante y refrigerante ha sido recubierto con hormigón coloreado en tono arcilloso. Los restos de un viejo nogal han servido para hacer la encimera de la isla de la cocina.
Cayuelas Arquitectos |